Before and after: building a custom screen enclosure
We are excited to share with you the results of one of Screen Factory Florida’s most challenging projects: a two-story cage that connects the pool relaxation zone and the second-floor terrace of a house.
Project Overview
We received an order for constructing a cage in Venice’s historic district. The area includes structures primarily built between 1925-1929, with a focus on preserving the architectural heritage in the Venice Historic Precedent (VHP) Style. This complicated obtaining permission from the city authorities. Additionally, the two-story structure required extra reinforcements and close adherence to the engineering plan. We managed to have a complete compromise between the client’s desires and a safe structure.
Historical Context
Venice was developed with a thematic design of the Italian Renaissance style. Architectural Significance: approximately 140 structures from the “Nolen Era” (pre-1930) remain, contributing to the city’s distinctive charm. New construction must adhere to VHP Style, which includes Italian Renaissance, Mediterranean Revival, and Northern Italian architectural elements. Compliance with specific materials, features, colors, and finishes to maintain historical integrity. Special conditions, visibility from the street, and surrounding VHP-style structures were considered.
Photos before
Client’s Vision
The client was unsure whether she wanted a single-story or a two-story cage. Our specialists developed construction drawings for both options to clearly demonstrate the differences. After presenting the drawings, the client immediately chose the two-story cage. We refined the sketches according to her wishes and proceeded to the next stage of the work.
Why a Two-Story Cage Was Chosen
This structure enhances and complements the luxurious house and the surrounding area while offering many advantages. For example, you can spend time with family or friends on both levels of the house, being in one visual space while avoiding discomfort from dust and insects, and the pool will always remain clean and protected from animals.
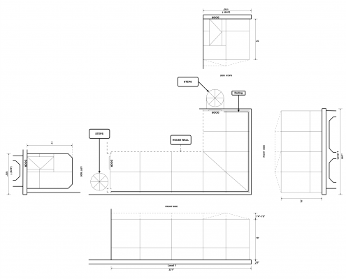
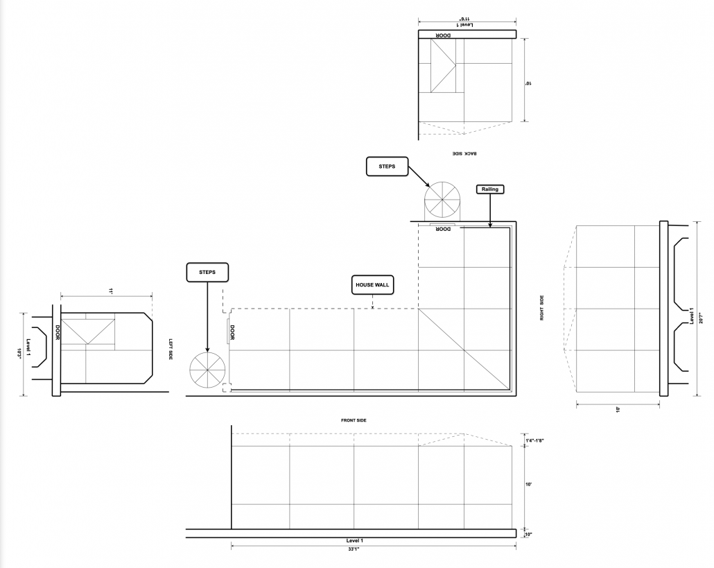
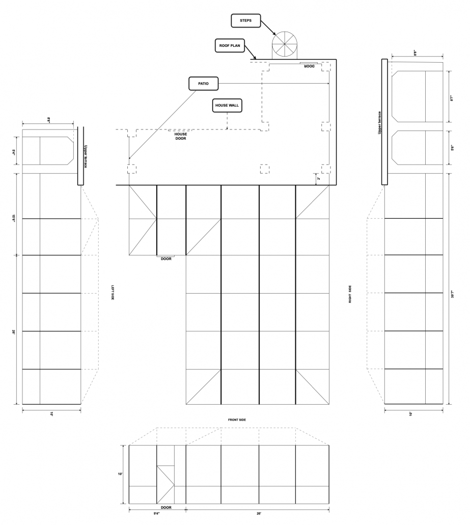
Drawings
Work stages
- Meeting with the client and measurements: Measurements at Screen Factory Florida are completely free. If you want to improve your outdoor space, contact us for a free measurement at (239) 544-5464.
- Additional measurements by our Installation specialists: We paid maximum attention to ensure everything was technologically advanced, ergonomic, and ultimately perfectly reflected the client’s needs.
- Development of drawings and sketches: We continuously communicated with the client to consider all her wishes and bring the structure as close to ideal as possible. At this stage, client corrections were made, and the final appearance of the cage was agreed upon.
- Submission of engineering and site plans: The structure was slightly adjusted but still completely aligned with the client’s vision. We happily proceeded to the next stage of the work.
- Gathering necessary documentation and applying for the permit: As mentioned earlier, the house belonged to a historic district, so it was crucial to design the cage to match the style of other houses in the neighborhood. Usually, obtaining a permit can be delayed due to such complexities, but we managed to get it in 27 days.
- Step-by-Step installation: We started with the upper terrace and then moved on to the main pool cage.
- Final stage of the work: After completing the installation, we ensured the reliability of all attachments, cleaned up the construction debris, and demonstrated the work to the client.
- Feedback: We are very interested in receiving feedback from our clients about our work. This allows us to grow faster. In this case, the client was completely satisfied with the results.
Photos in progress
Type of Mesh and Roof
For the main area, we chose the “no see um” mesh, and at the bottom, it was supplemented with a “pet screen,” which is very popular among homeowners with pets. The roof types also differed on first and second floors. We chose a gable roof for the terrace area and a flat roof for the pool zone.
Result
We managed to implement all the client’s ideas while creating a reliable cage that will last for many years.
Photos after


























